מיישר דלת קונספטה
מיישר דלת קונספטה
מיישר דלת קונספטה
מיישר דלת קונספטה
מיישר דלת קונספטה

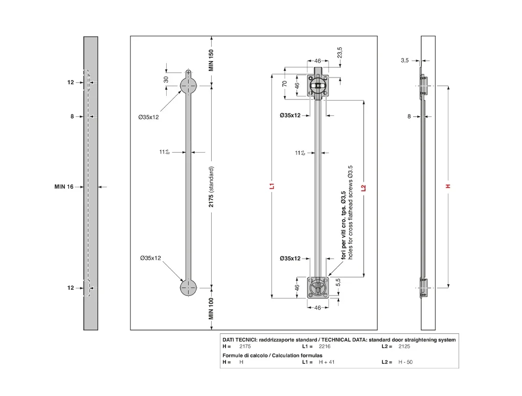
מארז 1 מיישר דלת כוונון מגב הדלת לכנף עד3000מ שחור 208BC001

מק"ט : C-BR22900001
כמות: 

    • חטיבת מוצר: פרזול למטבח

משלוח מתבצע תוך 3 ימי עסקים לבתי העסק.

החזרה/החלפה תוך 14 ימים מקבלת הסחורה, באריזה המקורית בלבד וללא שנעשה בהם כל שימוש.

לפרטים נוספים לחץ כאן